Description
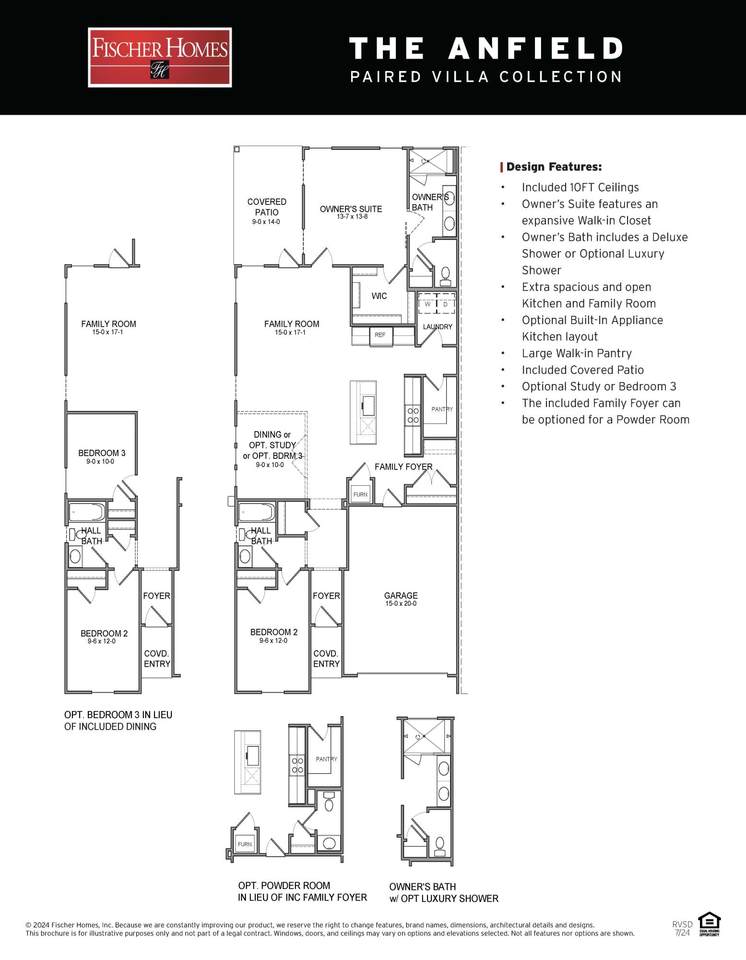
Construction has begun and the foundation has been poured!! Built by Fischer Homes, this beautifully designed Anfield Coastal Cottage in The Villas at Longleaf Park neighborhood at Watersound Origins offers thoughtfully planned single-level living with 2 bedrooms, 2 full baths, plus a powder room, all complemented by a peaceful water view. With included 10-foot ceilings and an open kitchen and family room layout, the home feels bright, spacious, and inviting. Upgrades include quartz kitchen countertops, a farmhouse sink, upgraded kitchen and bath cabinetry, a stainless canopy range hood, luxury vinyl flooring throughout, and tile extended to the ceiling in both full baths. The Owner's Suite features the Luxury Bath Suite and an expansive walk-in closet. An installed Smart Home security package allows for remote access and monitoring, offering added security and everyday ease. Relax on the covered patio overlooking the water and enjoy the ease of low-maintenance living HOA membership covers lawn care and exterior home upkeep, giving you more time to indulge in top-tier community amenities such as the Origins Golf Course, the resort-style pool at Village Commons, sports courts, and more. This is your opportunity to embrace easy living in a vibrant, amenity-rich community. Schedule your tour today!
-
2BEDS
-
N/AACRES
-
2BATHS
-
11/2 BATHS
-
1,442SQFT
-
$385$/SQFT
School Information
Description
Construction has begun and the foundation has been poured!! Built by Fischer Homes, this beautifully designed Anfield Coastal Cottage in The Villas at Longleaf Park neighborhood at Watersound Origins offers thoughtfully planned single-level living with 2 bedrooms, 2 full baths, plus a powder room, all complemented by a peaceful water view. With included 10-foot ceilings and an open kitchen and family room layout, the home feels bright, spacious, and inviting. Upgrades include quartz kitchen countertops, a farmhouse sink, upgraded kitchen and bath cabinetry, a stainless canopy range hood, luxury vinyl flooring throughout, and tile extended to the ceiling in both full baths. The Owner's Suite features the Luxury Bath Suite and an expansive walk-in closet. An installed Smart Home security package allows for remote access and monitoring, offering added security and everyday ease. Relax on the covered patio overlooking the water and enjoy the ease of low-maintenance living HOA membership covers lawn care and exterior home upkeep, giving you more time to indulge in top-tier community amenities such as the Origins Golf Course, the resort-style pool at Village Commons, sports courts, and more. This is your opportunity to embrace easy living in a vibrant, amenity-rich community. Schedule your tour today!
© 2026 Emerald Coast Association of Realtors MLS. All rights reserved. IDX information is provided exclusively for consumers' personal, non-commercial use and may not be used for any purpose other than to identify prospective properties consumers may be interested in purchasing. Information is deemed reliable but is not guaranteed accurate by the MLS or Scenic Sotheby's International Realty. Vendor Member number: 28178. Data last updated: 2026-03-11T00:00:26.473.
Vendor Member #28178.
